城市天际线工厂道路怎么建造 城市天际线工厂布局

城市天际线工厂道路怎么建造?工厂里的道路关系到货车的流转,当然也不仅仅是工厂内部,整个城市的道路设计都可以参考一下,下面小编就带来城市天际线工厂道路建造指南,一起来看看吧。
城市天际线工厂道路建造指南

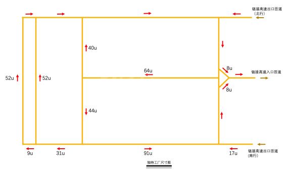
共用独特工厂道路 - 高速出入口分流式布局

此方案将高速交流道进出工业区的车流进行分流,车辆由两边进入工业区,由中间离开工业区,进行工业区后,通过一条共同道路链接两边的独特工厂,在道路末端设置大型独特工厂货物仓库储存货物,再通过货运机场/货物转运中心进行出口。

共同高速出入口 - 仓库分流式布局

此方案需要建造高速交流道出入口,已确保进出口车辆能流畅运行,由于空间控制,这里制作一个多层圆环形交流道作为工业区出入口,各位市长可根据实际地形改造,下面会也提供简化版对照,简化版仅作为车流运作的简化说明,不建议直接使用。

车辆由交流道进入后,直接通过一条共同道路链接两边的中型二级原料仓库,然后分流至两边独特工厂,在其中一端设置大型独特工厂仓库储存货物,再通过货运机场/货物转运中心进行出口。


